舊屋翻新,反轉超chill南洋渡假風,打造愜意慢生活!

現代混搭設計斷捨離,反轉舒適渡假風居宅

相識11年的屋主,2次與存果一起打造慢活哲學

11年前屋主經由客戶介紹,存果團隊參與了屋主首購的住宅空間設計與規劃,11年後,屋主為了讓家庭成員們生活空間更加舒適,有了換屋需求,這11年間,存果秉持建案品質,一直持續保持維修居宅相關服務。

在這次的換屋需求,屋主毫無保留的全權交付我們二次居宅的設計規劃。

屋主從過往的現代風與注重收納方式轉而成LESS IS MORE 少即是多的生活概念.且希望在家就能感受到放鬆釋壓的氛圍。

建案資訊:37坪15年中古屋,舊屋翻新

屋況:約15年中古屋
成員:2大人1小孩
坪數:37坪
原屋格局:1房2廳1衛
翻新格局:2房2廳2衛

屋主需求與整體規劃

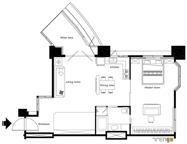
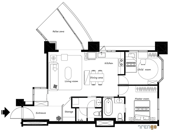
原屋況是37坪空間,一房二廳一衛,但並不符合屋主一家三口的生活需求,設計師將原本大坪數的主臥,分出一間小孩房,將一衛改成變更成二衛,主衛一全套式,外廳一組分離式衛浴,大門玄關入口處巧妙的設計了兩間隱密的儲藏室,一來可集中收納並減少過多櫃體佔據整體空間,讓生活使用空間,更加寬闊簡單.

trengo Interior design rattan floor plan1 舊屋翻新,反轉超chill南洋渡假風,打造愜意慢生活!
▲原始圖
trengo Interior design rattan floor plan2 舊屋翻新,反轉超chill南洋渡假風,打造愜意慢生活!
▲規劃後平面圖

歡迎回家的玄關空間

開門映入眼簾的即是玄關壁燈,加上喜歡的原質裝飾,簡單並溫馨。

在門旁左側是與天花板同高的米色鞋櫃兼收納櫃,搭配淺杏色復古磁磚,與客廳人字拼木海島型地板搭配出層次的變化。

改造前玄關
▲原屋況玄關
存果空間設計 玄關
▲ 改造後的玄關

跳脫稜角框架的客廳與巧妙的收納方式

客廳生活空間部分,利用淺色人字拼木海島型木質地板,在極簡的空間中利用圓拱設計門片與收納櫃,跳脫日常的方正稜角框架,在視覺空間增色不少獨有的層次感。

客廳背牆利用米白色搭配悠然的淺綠色,選配米色獨立沙發與粗織大型地毯,仿佛走進渡假小屋般的舒適,客廳必須要有桌子嗎?設計師這次將客廳桌子不列入整體規劃中,只為了讓家多了更大的活動空間。

電視櫃底層窗花設計,讓收納櫃不再顯得無趣,去掉大量的收納櫃,將收納方式巧妙的設計在電視櫃的兩側與雙面,用這種隱性收納的方式融合在你看不見的地方。

原屋況客廳
▲原屋況客廳
存果空間設計 客廳
▲客廳也可以不需要矮茶几,多了更寬敞的生活空間
存果空間設計 客廳
▲拱門設計讓整體空間不再有稜有角
存果空間設計 客廳
▲去掉大量的收納櫃,將收納方式巧妙的設計在電視櫃雙面與側面
存果空間設計 客廳
▲米白色搭配淺綠色,舒適的沙發,可以賴在客廳一下午

自然光讓餐廚空間更加寬敞透亮

開放式的餐廚空間,讓空間更加寬敞舒適,餐廚空間有面大窗,設計師大膽的將餐廚空間搭配大家都怕髒不好保養的白色調性,讓自然光襯托出整體空間的明亮感。使用藤編吊燈與原木質感桌,倍增渡假風感,另在衛浴外牆上設計復古窗花通風口,讓衛浴在不開燈的情況下也能擁有微光,也可讓衛浴空間空氣流通。餐廳空間偌大的餐桌,白天的自然光與夜晚藤編吊燈暖色光散發出的氛圍,舒適的環境彷彿置身咖啡店一般,辦公閱讀皆可。

原屋況餐廚空間
▲原屋況餐廚空間
存果空間設計 客廳 廚房
▲圓拱壁龕可修飾樑柱、柔化視覺,增加展示機能
存果空間設計 廚房
▲矽剛石檯面材質,硬度高不易有刮痕不易吃染色
存果空間設計 餐廳
▲使用藤編吊燈與原木質感餐桌,倍增渡假風感,另在衛浴外牆上設計復古窗花通風口,讓衛浴在不開燈的情況下也能用有光線,並增加空氣流動

客廳、陽台休閒區,一體成型零距離

將原屋況陽台的門打通,讓客廳陽台一體成型零距離的設計,牆面另外調配調性溫暖的橘咖色,軟裝置物櫃選用印度黃點綴,圍繞柔和的自然光,搭配吊床,即使不出門在家也能享有異國風情渡假風,天氣一熱也可擺放簡易游泳池,讓小朋友享受陽光的仲夏生活。

而避免玩水潑溼的情況下,搭配與玄關同樣材質磁磚相呼應風格,即使水花四溢也能好清理,並新增排水口也讓仲夏玩水之餘,方便排水。

另外休閒區屋主自行購買折疊桌,即使是看書、玩樂、喝下午茶皆可。

原屋況陽台
▲原屋況陽台
原屋況陽台
▲原屋況陽台
存果空間設計 客廳
▲輕鬆舒適的配色加上藤編家具讓家的環境更愜意
存果空間設計 休息區
▲搭配磁磚不需擔心水花四濺,難以清潔維護

極簡主臥,去繁從簡,好質感必須

主臥沒有過多的裝飾,米白色的牆面搭配低明度的亞麻灰床具,雖然極簡但賦予質感,極簡生活,去繁從簡,但使用的軟裝傢具等須有質感與耐用,為避免過度替換,造成反向複雜。

兩間臥房的地板搭配直紋淺色地板,與客廳與餐廚空間為區隔,利用不同材質,讓極簡設計中增添了混搭的趣味變化。

原屋況主臥室
▲原屋況主臥
原屋況主臥室
▲原屋況主臥
存果空間設計 臥室
▲沿用米白風格的牆面搭配低明度亞麻冷灰床具
存果空間設計 臥室
▲衛浴選用斜格紋的仿古玻璃拉門

主臥衛浴

原屋況一衛一臥的情況下,我們將空間規畫成二衛與二房,勢必在空間會做縮減,避免讓衛浴空間過度壅擠,主臥衛浴正牆搭配白色花紋的人字拼貼磚,利用白色讓視覺感更寬闊,牆面的窗花設計,也使衛浴空間在白天不開燈情況下擁有微光,使用簡單的弧形浴缸,在鏡台空間也增加了收納空間,方便置放換洗衣物等。

trengo Interior design rattan before8 舊屋翻新,反轉超chill南洋渡假風,打造愜意慢生活!
▲原屋況衛浴
存果空間設計 浴室
▲窗花設計,通風並復古有特色
存果空間設計 浴室
▲衛浴選用斜格紋的仿古玻璃拉門

低調粉嫩兒童房

即使是柔和米白色女孩房,屋主可愛的女兒喜歡粉紅色,設計師在軟裝搭配時也不忘了這一點,選用低明度不浮誇的粉色作為搭配衣櫃與矮櫃,避免過度陽光照射,兩面窗利用混搭風格不同材質搭配,整體空間感也不違和且舒適。

存果空間設計